lakás
Fonyód, Béke u. 11. kiadó munkássszálló
Adatok
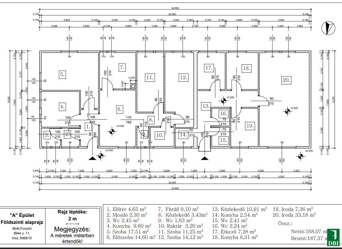
- Cím: Fonyód, Béke u. 11. kiadó 93,84 m2 munkásszálló
- Értékesítés típusa: Kiadó
- Ingatlan típusa: lakás
- Méret: 94 m2
- Közművek: Víz, Csatorna, Gáz, Áram
Kapcsolattartó
- Neve: Szűcs Judit
- Email címe: jszucs@dbi.hu
- Telefonszáma: 06-30-445-0148
















