ipari ingatlan

Fonyód, Béke u. 11. kiadó raktár, iroda, munkásszálló

Adatok

Kapcsolattartó

Leírás

Fonyód belterületén ipartelepet, vagy annak egyes épületeit kínáljuk bérbeadásra.
Az ingatlan a 7-es útról nyíló Béke utcában található, így a vonatállomásról gyalogosan is könnyedén elérhető.
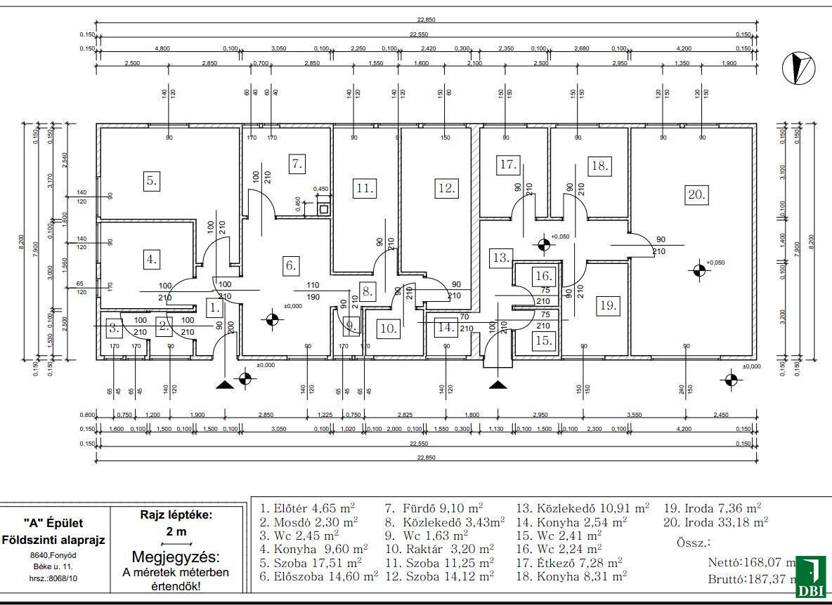
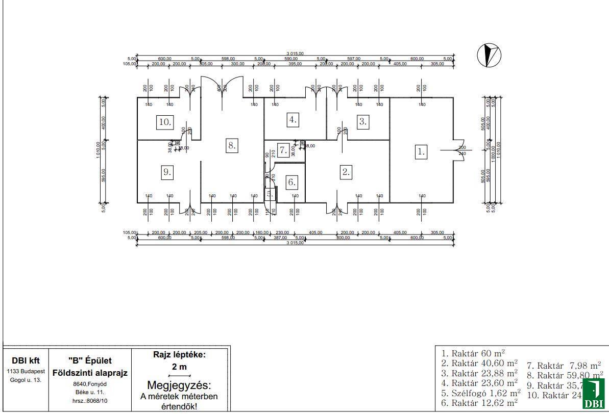
Mellékelt alaprajzokon látható a B épület, amely összesen nettó 290 m2 raktár, valamint az "A" elnevezésű ingatlant, melyben munkásszállónak megfelelő szobákat, konyhákat, fürdőszobákat, valamint 40 m2 iroda részt talál.
Alapterülete: 4411 m2
Teljes alapterület bérleti díja: megegyezés szerint + rezsi