iroda

Kaposvár, Raktár u. 13. kiadó iroda

Adatok

Kapcsolattartó

Leírás

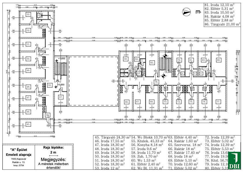
67. sz. főútról megközelíthető, Kaposvár, Raktár utca 13. szám alatt található, csendes irodaépületben, légkondicionált irodák kiadók.
A földszinten a 1.,2., 14.,15.,16.,17., iroda bérelhető.
Az irodák területe: 15,08-24,3 nm

A parkettázott irodák az "A" épület földszintjén helyezkednek el. Műanyag nyílászárókkal rendelkeznek és igény esetén bútorozottan kerülnek átadásra. A 24 órás őr- és portaszolgálattal, kamerarendszerrel biztosított telephelyen további irodák és parkoló is bérelhető.

Az ingatlan jelenlegi energetikai besorolása: EE

Bérleti díj: 2600 Ft/m2/hó+ÁFA, mely tartalmazza a rezsi költséget is.

Üzemeltetési díj: 940,8 Ft/m2/hó+ÁFA

További információért kérjük keresse munkatársunkat.