iroda

Szekszárd, Palánki u. kiadó iroda 40. sz.

Adatok

Kapcsolattartó

Leírás

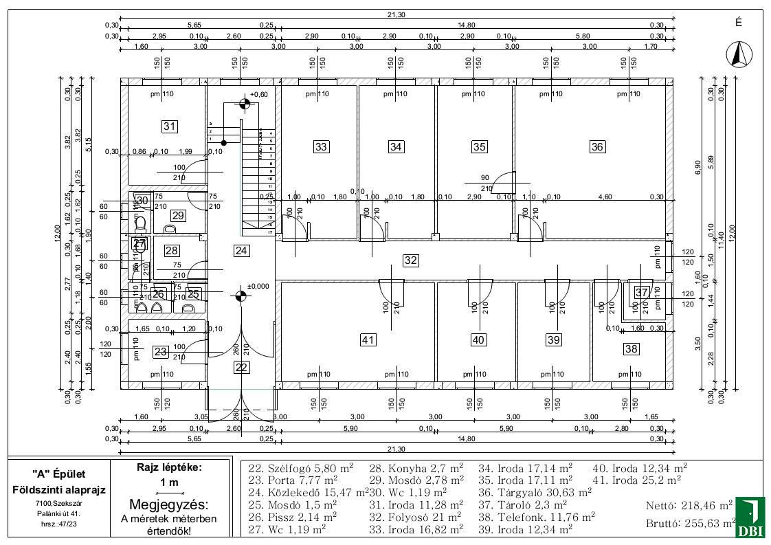
Kiadásra kínáljuk kiadó irodáinkat Szekszárd, Palánki u-i telephelyünkön. Az A épület földszintjén található 40. számú helyiségünk 12,34 m2, melynek bérleti díja 1600 Ft/m2/hó+Áfa. A bérleti díj tartalmazza a normál használatból adódó rezsi költségeket is. Irodáink klimatizáltak és telephelyünkön 0-24 órás porta szoláglat működik.
Az ingatlan jól megközelíthető az M6-os autópályáról. Jelenleg több szabad iroda is elérhető az A épületünkben 6,14 m2-246,23 m2-ig. Továbbá raktár, műhely és szabad terület bérlésére is van lehetőség.
Amennyiben hirdetésünk felkeltette érdeklődését forduljon hozzánk bizalommal.